შეუკვეთეთ ზარი
მთავარი
კომპანია
პროექტი
უპირატესობები
კონტაქტი
+995 514 71 04 04
KA
EN
RU
LIVE
ბინის არჩევა
Toggle navigation
✕
ბინის არჩევა
მთავარი
კომპანია
პროექტი
უპირატესობები
კონტაქტი
უკან
სართული
3
ბინა
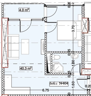
304
ბინის 3D გეგმა
ბინის არქიტექტურული ნახაზი
ბინა #304
თავისუფალი
სართული:
3
ბინა :
#304
აივანი :
3 m
2
სულ ფართობი :
39.1 m
2
ზარის შეკვეთა
გადმოწერეთ პრეზენტაცია
ზარის შეკვეთა
გაგზავნა
გაგზავნა
Error occurred while sending email. Please try again later.
პროექტის ვიდეო
Your browser does not support the video tag.
ზარის შეკვეთა
სახელი:
მობილური:
შეტყობინება: