შეუკვეთეთ ზარი
3D Image Architecture Image

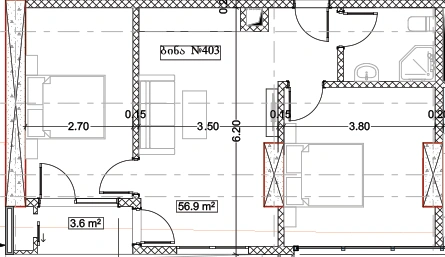
ბინა #1003

  • თავისუფალი
  • სართული: 10
  • ბინა : #1003
  • აივანი : 3.6 m2
  • სულ ფართობი : 60.5 m2